Property Summary
CHARMING GRADE II THATCHED COTTAGE WITH ANNEXE IN AN IDYLLIC PURBECK SETTING
Welcome to a truly enchanting Grade II listed thatched home, believed to date back to the mid-17th century and set within the picturesque hamlet of East Creech in the heart of the Isle of Purbeck. Surrounded by rolling countryside and a designated Area of Outstanding Natural Beauty, this charming home offers an idyllic rural lifestyle close to the historic village of Corfe Castle, yet still within easy reach of Wareham’s mainline railway station, providing direct links to London Waterloo.
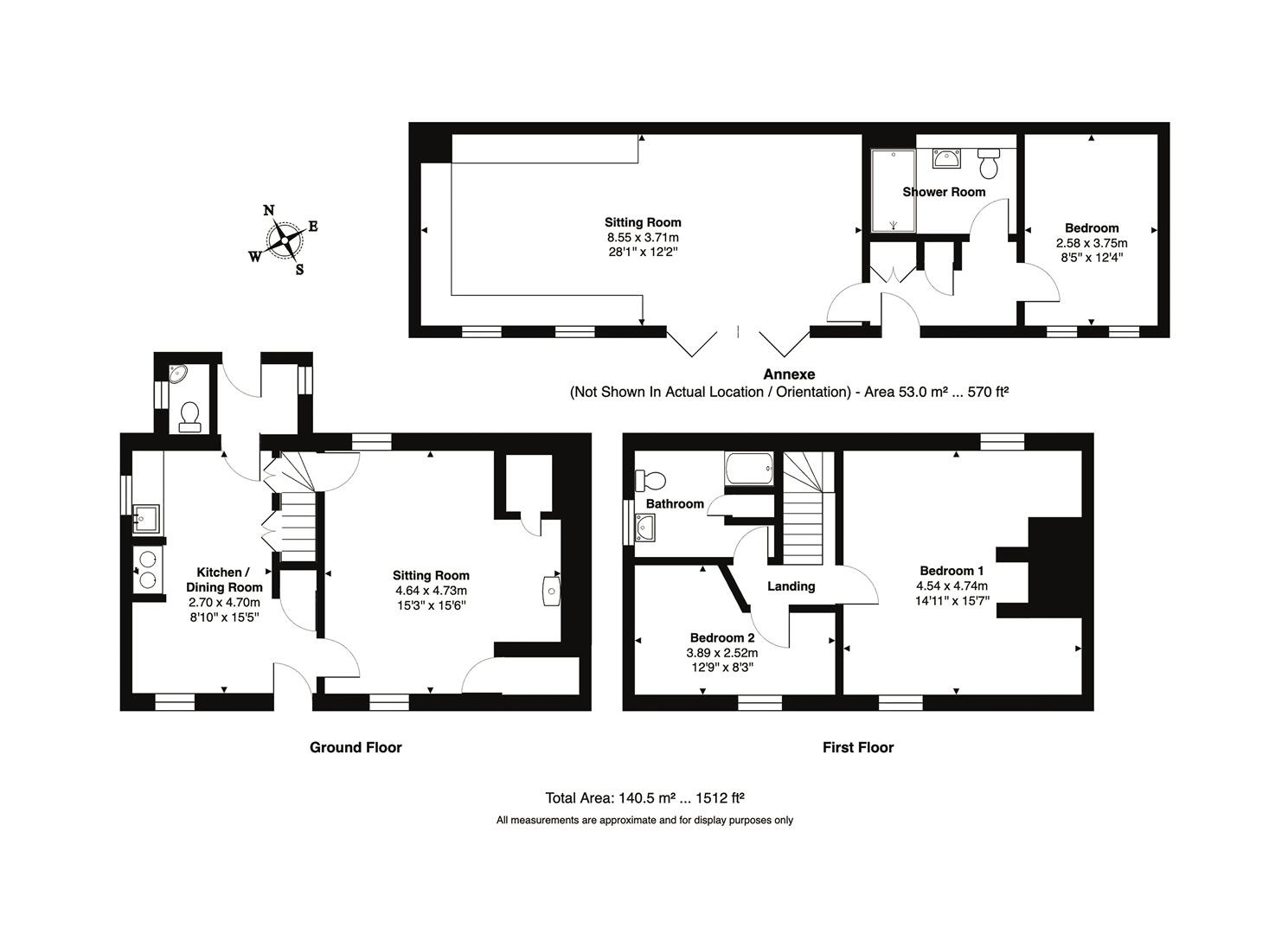
The cottage effortlessly blends period character with modern comfort. Inside, the sitting room showcases a striking inglenook fireplace complete with wood burner and bread oven, complemented by flagstone flooring and exposed timbers. The kitchen retains a traditional feel, featuring an electric Aga set within a former fireplace. Upstairs, the principal bedroom features a vaulted ceiling and characterful fireplace, adding to the home’s undeniable charm. Externally, the property enjoys beautifully maintained gardens extending to approximately a quarter of an acre, including a kitchen garden, orchard and additional lawned areas. A standout feature is the detached timber annexe, thoughtfully designed with bi-fold doors opening onto a private lawn with distant views towards Poole Harbour, making it ideal for guests, home working or additional accommodation.
A rare opportunity to acquire a quintessential Dorset cottage in a peaceful yet well-connected location, offered for sale with vacant possession and no forward chain.
ADDITIONAL INFORMATION
Tenure
Freehold
Council Tax
Band D - Dorset Council
Services
Mains electricity, private water and drainage and oil-fired central heating and Aga